Expert nekretnine logo
/

Rajićeva,

Centar, Medijana

ID: p-14969

/

Prodaja

/

Stan

184.730,00 €

Osnovne informacije

Cena po m2
2860.00 €
Sprat
1
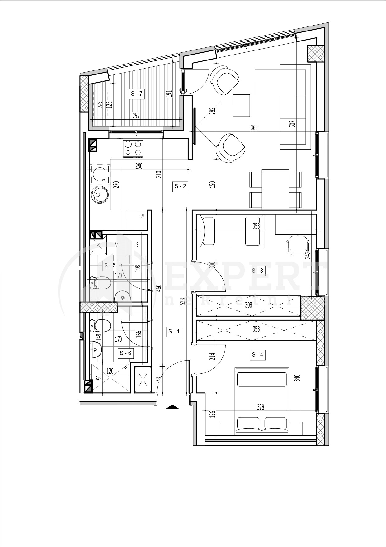
Površina
64 m²
Nameštenost
Nenamešten
Broj spavaćih soba
2
Broj kupatila
1
Grejanje
Etažno (kotao na struju zaseban)
Parking
Parking uz zgradu
Struktura
Dvoiposoban
Stolarija
Aluminijumska

Ostale informacije

Interfon
Da
Video nadzor
Da
Smart Home
Ne
Tip interneta
Lift
Da

Opis

Na prodaju ekskluzivna novogradnja u centru. Stambeno poslovni objekat Po+P+8. Stan je projektovane površine 64,59m2. Nalazi se na prvom spratu, čine ga ulazni hodnik, dnevna soba sa trpezarijom i kuhinjom, dve spavaće sobe, toalet, kupatilo i terasa. Svaka stambena jedinica ima nezavisan sistem grejanja i hlađenja koji je automatizovan i moguće ga je kontrolisati putm mobilnog uređaja. Sistem za grejanje je postavljen kroz pod sa elektro-kotlom, dok je rashladni sistem sa invertor klimama. Svi podovi izvedeni su kao plivajući sa ugrađenom zvučnom izolacijom. Na podu je višelojni parket, a u kupatilu granitna keramika. Unutrašnja stolarija izrađena je od visoko kvalitetnog furnira, dok je spoljna stolarija od aluminijuma. Predviđeni rok završetka je jun 2027. godine. Za kupce prvog stana postoji mogućnost povratka PDV-a. Postoji mogućnost kupovine parking mesta. Ovo je samo deo naše ponude, za više informacija stojimo Vam na raspolaganju.

Lokacija