Expert nekretnine logo
/

dr Dragutina Petkovića,

Donja Vrežina, Pantelej

ID: p-15067

/

Prodaja

/

Stan

84.200,00 €

Osnovne informacije

Cena po m2
1754.00 €
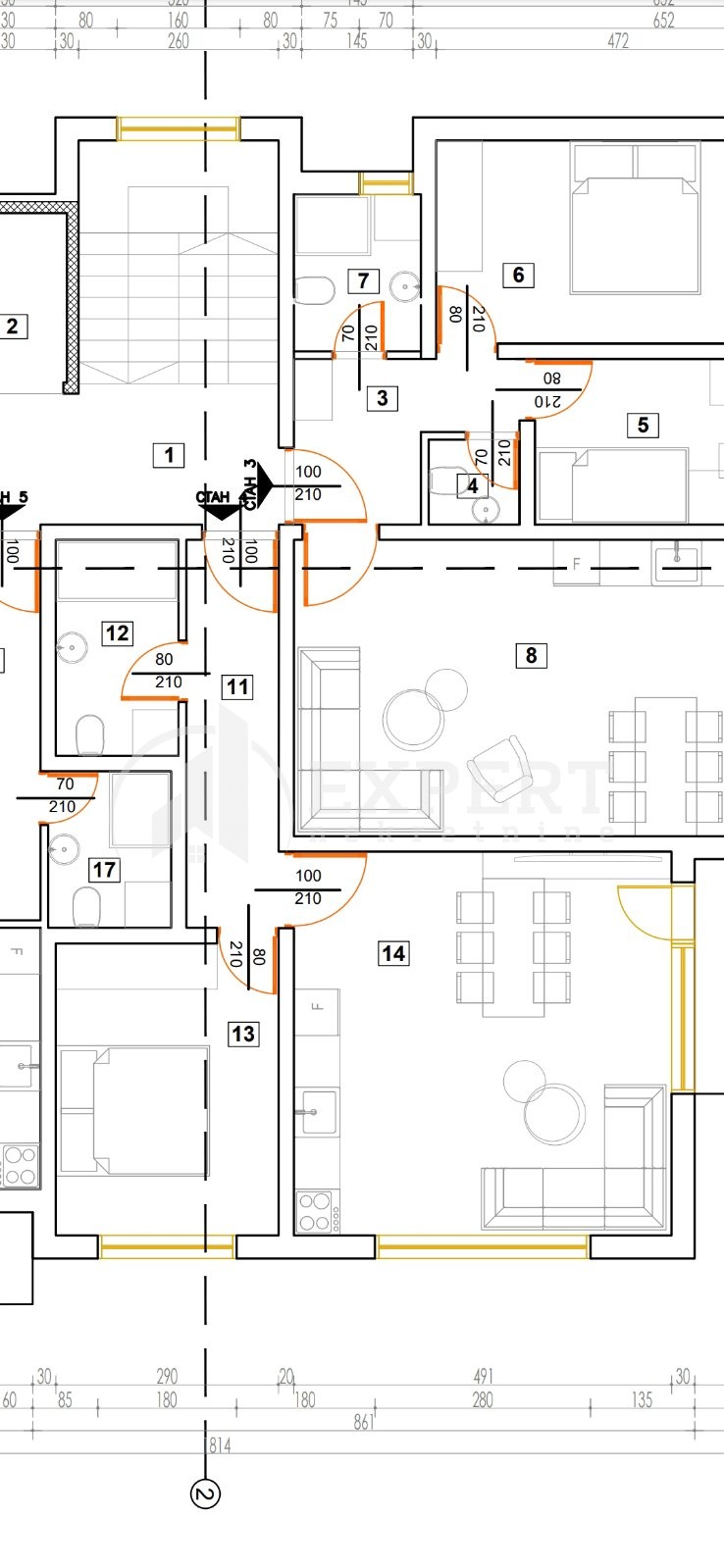
Sprat
1
Površina
48 m²
Nameštenost
Nenamešten
Broj spavaćih soba
0
Broj kupatila
1
Grejanje
Norveški radijatori
Parking
Posebno parking mesto
Struktura
Dvosoban
Stolarija
PVC

Ostale informacije

Interfon
Da
Video nadzor
Ne
Smart Home
Ne
Tip interneta
Lift
Da

Opis

Na prodaju stan u izgradnji, 48m2 na prvom spratu u zgradi P+3, sa liftom. Stan se satoji od ulaznog hodnika, dnevne sobe sa kuhinjom i trpezarijom, spavaće sobe, kupatila i terase. Grejanje na struju inverter klimom. Kupci imaju mogućnost biranja podnih obloga( po vrsti, kvalitetu i ceni). Stolarija će biti kvalitetna PVC. Predviđeni kraj izgradnje je kraj septembra 2026.Postoji mogućnost kupovine parking mesta uz doplatu. Povrat PDV-a za kupce koji ostvaruju pravo na oslobodjenje. Ovo je samo deo naše ponude, za sve ostale informacije možete se oglasiti našoj agenciji nekretnina.

Lokacija