Expert nekretnine logo
/

Pribojska,

Branko Bjegović, Crveni krst

ID: p-15136

/

Prodaja

/

Stan

47.500,00 €

Osnovne informacije

Cena po m2
1826.00 €
Sprat
3
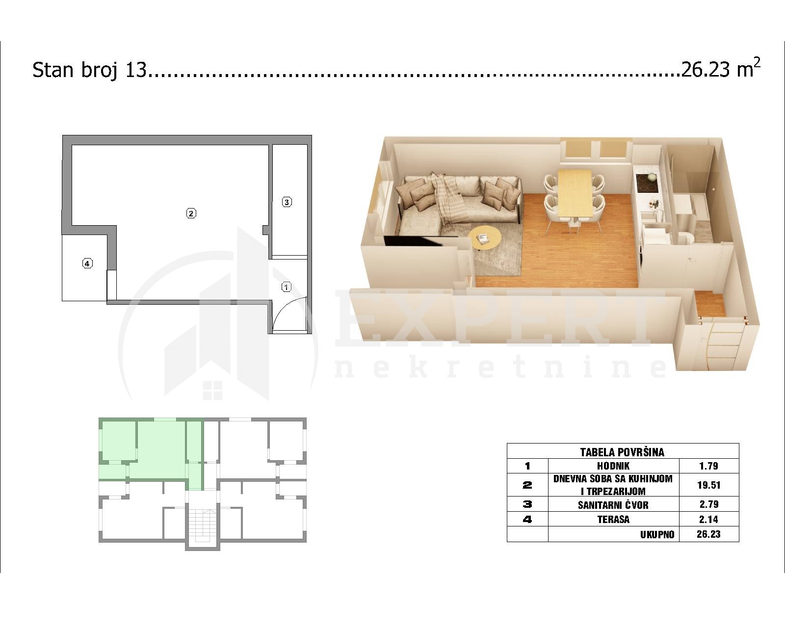
Površina
26 m²
Nameštenost
Nenamešten
Broj spavaćih soba
1
Broj kupatila
1
Grejanje
Norveški radijatori
Parking
Struktura
Garsonjera - Studio
Stolarija
PVC

Ostale informacije

Interfon
Ne
Video nadzor
Ne
Smart Home
Ne
Tip interneta
Lift
Ne

Opis

Na prodaju garsonjera površine 26m², koji se nalazi na trećem spratu nove stambene zgrade u naselju Branko Bjegović.. Nekretnina se nalazi na mirnoj lokaciji, u neposrednoj blizini osnovne škole, vrtića ambulante i gradskog prevoza. Čine ga dnevna soba sa kuhinjom i trpezarijom, kupatilo i terasa. Poseduje PVC stolariju, grejanje na struju, što omogućava niske troškove održavanja. Idealna je za jednu osobu, studenta ili kao investicija za izdavanje. Planirani završetak radova jun 2026 god. Moguća kupovina putem kredita. Ovo je samo deo naše ponude, za više informacija, stojimo Vam na raspolaganju.

Lokacija