/
Cara Dušana,
Centar, Medijana
ID: p-15155
/Prodaja
/Stan
390.000,00 €
Osnovne informacije
Cena po m2
1688.00 €
Sprat
—
Površina
231 m²
Nameštenost
Nenamešten
Broj spavaćih soba
7
Broj kupatila
0
Grejanje
Centralno
Parking
Parking na ulici
Struktura
Više od tri spavaće sobe
Stolarija
Drvena - dvokrilna
Ostale informacije
Interfon
Ne
Video nadzor
Da
Smart Home
Ne
Tip interneta
—
Lift
Ne
Opis
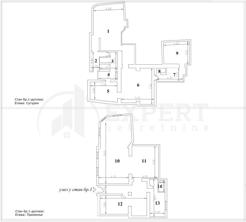
Na prodaju odličan višenamenski dupleks na visokom prizemlju i suterenu starije zgrade u strogom centru. Nalazi se na atraktivnoj lokaciji blizu šetačke zone. Pogodan je kako za stanovanje tako i za obavljanje raznih poslovnih delatnosti, kao što su ugostiteljstvo, trgovačko-uslužne delatnosti, zdravstvo, razna predstavništva i sl. Prostor je izvorno, pre svega, bio u funkciji komfornog stana, a više godina unazad prilagođen je nameni vrhunskog ugostiteljskog objekta po svim standardima. Uknjižena površina je 187m2, dok je korisna ukupna 231m2. Izvršena je kompletna renovacija enterijera, sa izuzetno luksuznom rustikom. Sastoji se od prostora u dva nivoa, povezano unutrašnjim stepenicama. Prizemlje je korisne površine 116m2 i sastoji se od ulaznog dela sa stepeništem, koje se grana za donju i gornju etažu. Na gornjoj etaži nalazi se prostor za garderobu, u cetralnom delu je smešten šank sa pomoćnom kuhinjom i liftom za dostavu hrane. Ostatak prostora predstavlja restoranski deo za goste, koji se sastoji od tri prostorije, međusobno povezane, različitih veličina. U jednoj od njih se nalazi kamin, koji dodatno oplemenjuje unutrašnji ambijent. Donja etaža je površine 115m2. Sastoji se iz dva dela, u jednom delu je prostorija predviđena za poslovne ručkove i sastanke i toaleti za goste. U drugom delu te etaže je kuhinjski blok sa toaletima za osoblje, prostorom za presvlačenje zaposlenih, toplom i hladnom kuhinjom i magacinom za hranu. Donja etaža je kompletno obložena keramikom sa svim potrebnim instalacijama.
Dupleks je uknjižen kao stambeni prostor, čista svojina 1/1. Topla preporuka naše agencije! Za više informacija slobodno nas kontaktirajte.
Dupleks je uknjižen kao stambeni prostor, čista svojina 1/1. Topla preporuka naše agencije! Za više informacija slobodno nas kontaktirajte.