Expert nekretnine logo
/

Kosovke Devojke,

Pantelej(Niš), Pantelej

ID: p-15693

/

Prodaja

/

Stan

94.116,00 €

Osnovne informacije

Cena po m2
2300.00 €
Sprat
2
Površina
40 m²
Nameštenost
Nenamešten
Broj spavaćih soba
1
Broj kupatila
1
Grejanje
Etažno (kotao na struju zaseban)
Parking
Posebno parking mesto
Struktura
Jednoiposoban
Stolarija
Aluminijumska

Ostale informacije

Interfon
Da
Video nadzor
Ne
Smart Home
Ne
Tip interneta
Lift
Da

Opis

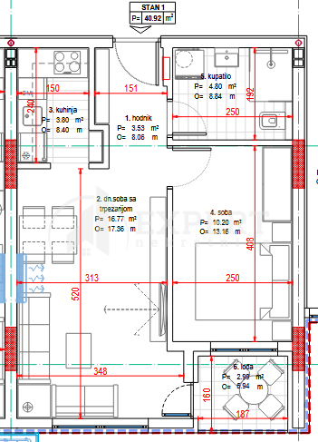
Luksuzan objekat u samom srcu Panteleja! Stambeni objekat po+pr+4 od 35 stambenih jedinica. U ponudi odličan, jednoiposoban stan 40.92m2 u izgradnji, na 2.spratu, u jedinstvenom objektu, koji se sastoji od ulaznog hodnika, prostrane dnevne sobe sa trpezarijom, uvučene kuhinje, spavaće sobe, kupatila i lođe na koju se izlazi iz dnevne sobe. Stakleni portali od poda do plafona prema terasi pružaju otvoren pogled, kao i odlično prirodno osvetljenje u prostoriji. Izuzetna funkcionalnost stanova i vrhunski kvalitet ugradjenih materijala i opreme je ono što izdvaja ovaj objekat i čini ga pravim izborom za Vas. Aluminijum prozori visokog kvaliteta sa šestokomornim staklima i alu roletnama, tarket parket vrhunskog kvaliteta, keramika premium kvaliteta, na terasi granitne pločice, sigurnosna vrata , etažno i podno grejanje. Parking poseduje punjače za električne automobile. Bešumni lift. Zgrada će biti izgrađena na placu od 15a, sa 35 stanova (različitih kvadratura od 35m2 do 67m2), što pruža posebnu pogodnost zajedničkog velikog dvorišta, uredjeno stazama, rasvetom, parking mestom za bicikle, motore, kao i zelenom površinom koja će Vam pružiti prave trenutke opuštanja Video nadzor i interfon Vam pružaju neophodnu sigurnost. Povraćaj PDV-a za kupce prvog stana. U prizemlju objekta je predviđen natkriveni parking prostor sa tri parking mesta, dok je na parceli planirano još njih 38. Rok za završetak objekta je do kraja 2027.god. godine. Ovo je samo deo naše ponude, ovaj kao i druge stanove sa većim brojem fotografija možete pogledati na našem sajtu.

Lokacija