/
Nikole Rašića Koleta,
Donja Vrežina, Pantelej
ID: p-15749
/Prodaja
/Stan
57.200,00 €
Osnovne informacije
Cena po m2
1751.00 €
Sprat
2
Površina
32 m²
Nameštenost
Nenamešten
Broj spavaćih soba
0
Broj kupatila
1
Grejanje
Norveški radijatori
Parking
Posebno parking mesto
Struktura
Jednosoban
Stolarija
PVC
Ostale informacije
Interfon
Ne
Video nadzor
Ne
Smart Home
Ne
Tip interneta
—
Lift
Da
Opis
Na prodaju stan u izgradnji u Donjoj Vrežini, u neposrednoj blizini DIS-a, Lidl-a i naselja „Beverly Hills“.
Moderan stambeni objekat spratnosti Po+P+4, sa ukupno 21-om stambenom jedinicom i isto toliko podrumskih prostorija, kao i parking mesta.
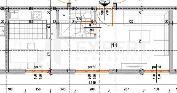
Stan je projektovane površine 32,66m2, nalazi se na drugom spratu. Po strukturi je jednosoban i sastoji se od ulaznog hodnika, višenamenske dnevne sobe, trpezarije sa kuhinjom i kupatila.
Gradi se po visokim standardima, demit fasada, energetski pasoš, spoljna PVC (antracit) stolarija, podne obloge od prvoklasne keramike i tarketa.
Mogućnost kupovine parking mesta.
Očekivani rok zavšetka radova je januara 2028-e godine.
Moderan stambeni objekat spratnosti Po+P+4, sa ukupno 21-om stambenom jedinicom i isto toliko podrumskih prostorija, kao i parking mesta.
Stan je projektovane površine 32,66m2, nalazi se na drugom spratu. Po strukturi je jednosoban i sastoji se od ulaznog hodnika, višenamenske dnevne sobe, trpezarije sa kuhinjom i kupatila.
Gradi se po visokim standardima, demit fasada, energetski pasoš, spoljna PVC (antracit) stolarija, podne obloge od prvoklasne keramike i tarketa.
Mogućnost kupovine parking mesta.
Očekivani rok zavšetka radova je januara 2028-e godine.